Skip to content
The Premier Vacation Rental of Brandon, VT
No 28 Park
Home
Photo Tour
Floor Plans
Amenities
About Brandon
The History
Discover Downtown
Walking Tour
Things to Do Nearby
HIking Vacation
Take a Golf Vacation
Ski Lodging
Mountain Biking & More!
Additional Links and Resources
Wedding Accommodations
Reviews
Contact
617-821-6020
Book Now
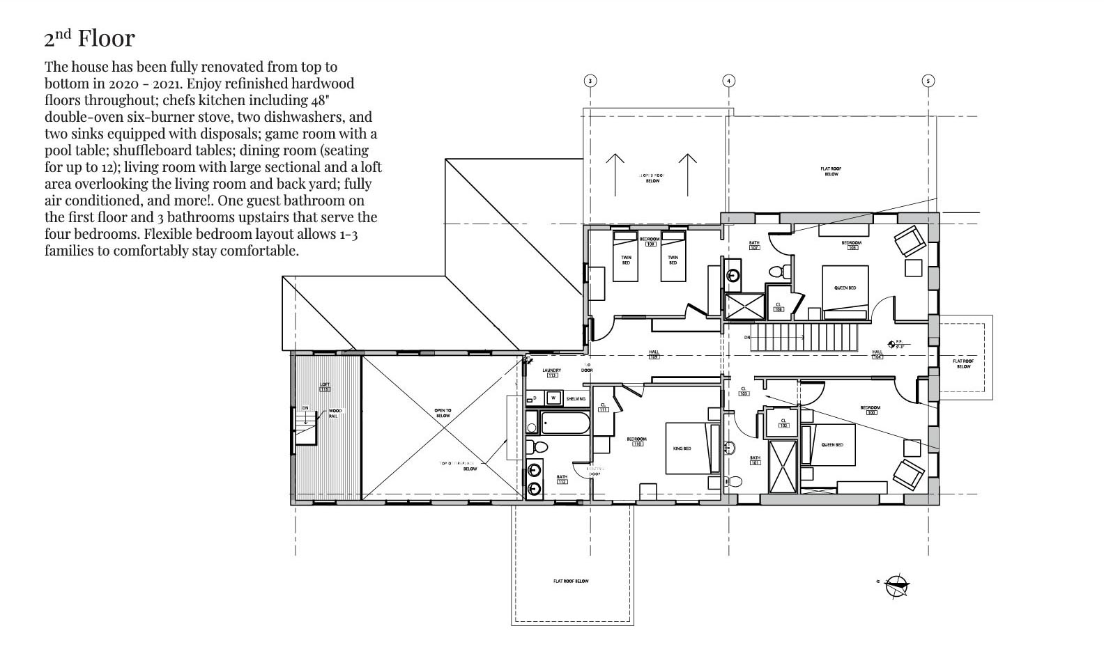
Floor Plans
www.No28Park.com |
www.vrbo.com/1924558
|
617-821-6020
Download a Brochure